Redłowo, 3 pokoje, po generalnym remoncie
Dane nieruchomości
Opis nieruchomości
3‑pokojowe mieszkanie blisko morza – Gdynia Redłowo, idealne pod wynajem – ul. Powstania Śląskiego
Na sprzedaż oferuję funkcjonalne, trzypokojowe mieszkanie położone w jednej z najbardziej cenionych dzielnic Gdyni. Redłowo to miejsce, które łączy bliskość natury, świetną komunikację i pełną infrastrukturę miejską. Od plaży dzieli Cię około kilometr, a okolica sprzyja zarówno codziennemu życiu, jak i wynajmowi.
Standard wykończenia:
Lokal przechodzi obecnie generalny remont obejmujący również wymianę instalacji. Dołączone fotografie przedstawiają wcześniejszy projekt wykonany w identycznym stylu i z użyciem tych samych materiałów.
Co wyróżnia tę ofertę?
* widok na morze z mieszkania,
* pełny remont generalny wraz z instalacjami,
* w najbliższym otoczeniu: szkoła, szpital oraz tereny leśne,
* zadbana klatka schodowa i elewacja w bardzo dobrym stanie,
* pełna infrastruktura handlowo‑usługowa w zasięgu kilku minut,
* szybki dostęp do SKM (ok. 1 km).
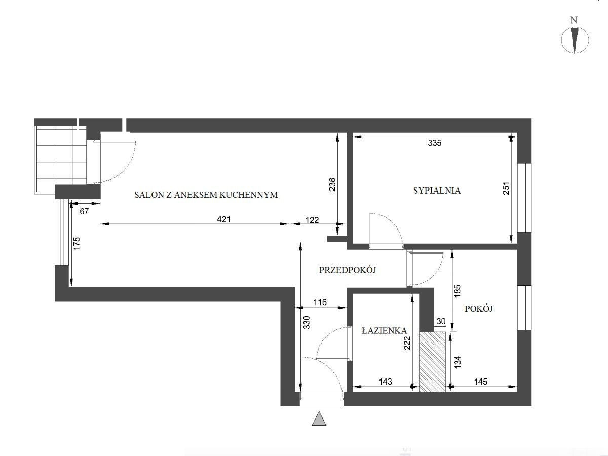
Mieszkanie składa się z:
jasnego salonu połączonego z aneksem kuchennym,
dwóch oddzielnych sypialni,
przedpokoju,
łazienki wyposażonej w prysznic.
Do lokalu przynależy piwnica.
W pokojach i korytarzu zastosowano panele o najwyższej klasie ścieralności, natomiast łazienka została wykończona płytkami.
Dzięki lokalizacji i świetnej komunikacji mieszkanie doskonale sprawdzi się jako pewna inwestycja pod wynajem.
Budynek:
czteropiętrowy blok mieszkalny,
elewacja w bardzo dobrym stanie,
czysta, zadbana klatka schodowa.
Położenie:
ok. 1 km do plaży,
kilka minut spacerem do lasu,
sklepy, apteka i punkty usługowe tuż obok,
szkoła i szpital w sąsiedztwie,
dogodny dostęp do SKM Gdynia Redłowo oraz przystanków ZKM z dojazdem do centrum.
Zapraszam na prezentację !
